MAP
Photos
Map
Schools

Havelock North 61-65 Havelock Road

ID NC65357
By Negotiation

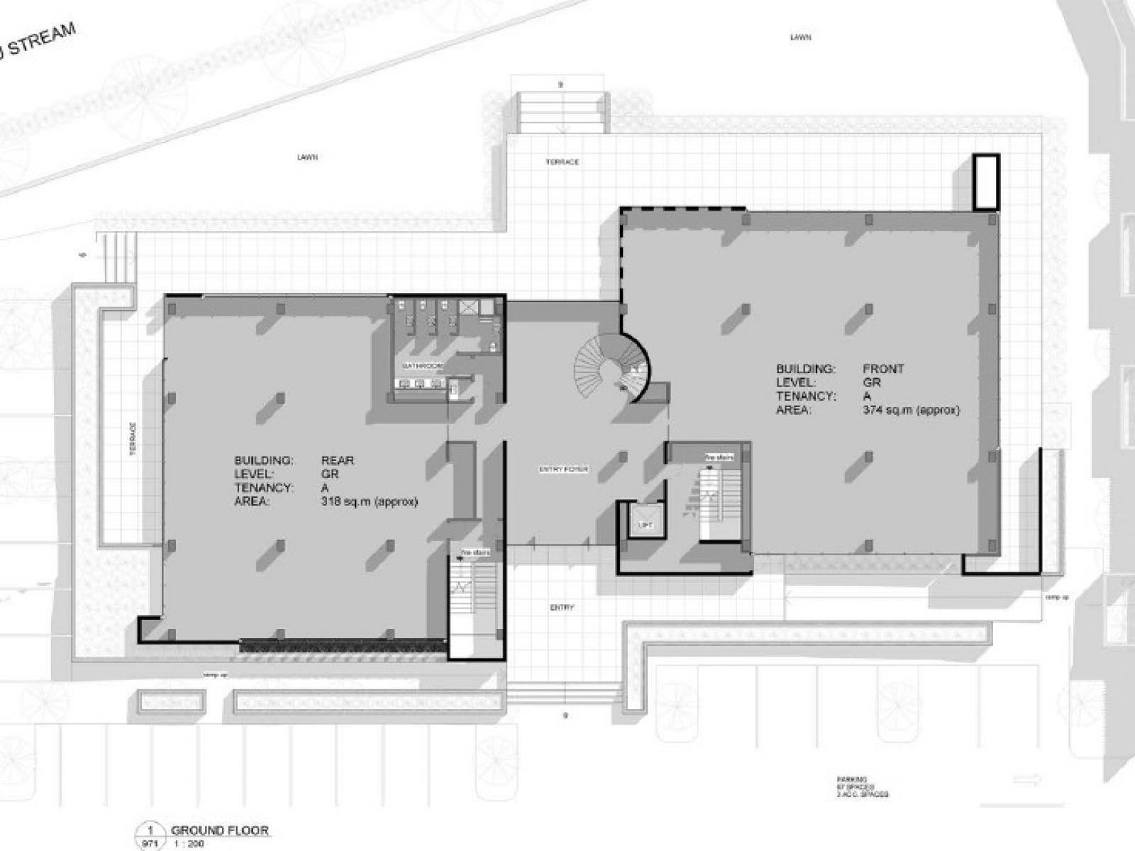
Amazing and new office accommodation

Located at the gateway of Havelock North, Hawkes Bay and situated overlooking a river and with tree lined views, this is the best three level development to be brought to market. The total premises consists of 2,236sqm of A+ office tenancy's. Various options are noted below. Your tenancy will have excellent exposure as the building is located on the main arterial route but is also very private as there is the Karamu stream on one side and a sports ground on the other. The centre of Havelock North is only a five minute walk or to Hastings is a five minute drive. This mint development comprises of: • Parking for 70 vehicles • Central atrium • Tranquil river setting • 'A' grade office accommodation Available tenancy's as follows: • Ground floor - 318sqm • Ground floor - 374sqm • Level 1 - 308sqm + 23sqm terrace • Level 1 - 387sqm +18sqm terrace • Level 2 - 808sqm leased Completion expected mid 2020
Features
Area | 2236.00m2
PRINT ENQUIRE NOW

Gil Button

M  021 326 956  P  06 281 3709

Enquire Now










ASAP  ASAP  ASAP  ASAP  0-2 months  0-2 months  0-2 months  0-2 months  3-6 months  3-6 months  3-6 months  3-6 months 
Yes  Yes  Yes  No  No  No 













Privacy Statement




Property Brokers Ltd MREINZ acknowledges and complies with the provisions of the Privacy Act 1993 and its amendments. In particular Property Brokers policy covers the following specific points relevant to this topic and this website:


Any client information you provide to Property Brokers will be used only for the purpose for which it is given and will not be passed on to any third party except in accordance with the law, or with specific consent.


In the main, this will be to facilitate company communication with you in order to better meet your real estate objectives and expectations.


Information provided by you will remain confidential to Property Brokers Real Estate Ltd MREINZ. This particularly applies to your reasons for selling which we regard and treat as a personal and private matter.


Any information divulged by you to any other website linked to the Property Brokers website is given at your discretion alone, and Property Brokers takes no responsibility for any disclosures that might result.


Information provided on this website is copyrighted to Property Brokers and may be accessed, downloaded and used for personal use only. The material must not be modified, copied or reproduced for gain or commercial use without the consent in writing of Property Brokers Real Estate Ltd MREINZ.


 




Google disclaimer


This website uses Google Analytics to help analyse how users use the site.


The tool uses "cookies," which are text files placed on your computer, to collect standard Internet log information and visitor behaviour information in an anonymous form.


The information generated by the cookie about your use of the website (including your IP address) is transmitted to Google. This information is then used to evaluate visitors use of this website and to compile statistical reports on website activity.


We will never (and will not allow any third party to) use the statistical analytics tool to track or to collect any Personally Identifiable Information of visitors to our site. Google will not associate your IP address with any other data held by Google. Neither we nor Google will link, or seek to link, an IP address with the identity of a computer user.


You may refuse the use of cookies by selecting the appropriate settings on your browser, however please note that if you do this you may not be able to use the full functionality of this website.


By using this website, you consent to the processing of data about you by Google in the manner and for the purposes set out above.


This website uses Google AdWords


This website uses the Google AdWords remarketing service to advertise on third party websites (including Google) to previous visitors to our site. It could mean that we advertise to previous visitors who havent completed a task on our site, for example using the contact form to make an enquiry. This could be in the form of an advertisement on the Google search results page, or a site in the Google Display Network. Third-party vendors, including Google, use cookies to serve ads based on someones past visits to the [CLIENT NAME] website. Of course, any data collected will be used in accordance with our own privacy policy and Googles privacy policy.


You can set preferences for how Google advertises to you using the Google Ad Preferences page, and if you want to you can
opt out of interest-based advertising entirely by cookie settings or
permanently using a browser plugin.


Gil Button
Similar Listings
5 Havelock Road
Havelock North

Outstanding opportunity to locate your office in the heart of Havelock North and within the newest building! Located on level one this well appointed office boosts ...

Lease